Ogłoszenie dodane przez niezalogowanego użytkownika

Sprzedam gabinet/lokal użytkowy 32 m2 KOŁO

Dodane: 05-06-2018 16:22
Ważne do: 04-08-2018

KategoriaGabinety i przychodnie - sprzedam
Specjalizacja:Bez specjalizacji
Regionwielkopolskie
Cena:159 zł
Sprzedam bezpośrednio:



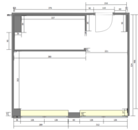
Lokal usługowy - gabinet lekarski: powierzchnia 31,5 m2
Układ: 2 pomieszczenia

Kondygnacja: I piętro (budynek II-piętrowy - przychodnia)
Stan techniczny i wyposażenie: budynek murowany, całodobowy monitoring, lokal w dobrym stanie technicznym, ciepły, ekspozycja okien północna, okna z PCV, w całym lokalu na podłodze terakota, na ścianach płytki ceramiczne, umywalka, meble biurowe, komputer, drukarka, telefon/faks, oddzielne wspólne WC dla personelu lekarskiego i WC dla pacjentów obok, w korytarzu. Części wspólne budynku - wejście, korytarze, schody po remoncie.

Otoczenie: położenie w centrum miasta, przy małej ulicy wewnętrznej, przy budynku parking na 80 miejsc.

Przynależności: 1 pomieszczenie gospodarcze w piwnicy (powierzchnia ok.3 m2).

Lokalizacja: Koło, Niepubliczny Zakład Opieki Zdrowotnej „Kolmed” ul. PCK 8 Kolejowa.

Stan prawny: własnościowe prawo do lokalu mieszkalnego z księgą wieczystą, bez obciążeń hipoteką.